
JAMES PERSE
ST TROPEZ LES LICES
Saint‑Tropez, Var
4000 sq. ft.
Mar 28 – Apr 07 l 2025
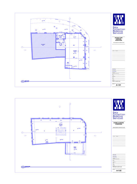
As-Built Plans
Aperçu du projet
In the heart of Saint-Tropez’s luxury shopping district, this two-level retail space spans roughly 4,000 sq. ft. and offers premium visibility on a prominent corner surrounded by high-end boutiques. Vacant during the survey, the property revealed structural and ornamental details such as exposed beams, columns, and a richly decorated façade. DCMS documented the existing conditions to deliver accurate as-built data, providing a solid foundation for renovation and interior design coordination.
Livrables
High-Resolution LiDAR Point Cloud: Accurate spatial data for as-built documentation
360° Digital Twin: Remote visualization tool for project stakeholders and designers
LOD 300 Revit Model: Full 3D representation with SketchUp export for seamless design integration
CAD Drawings & PDF Sheets: Fully annotated and coordinated documentation



Notre rôle et notre technologie
DCMS created as-built documentation using RTC360 laser scan data. Our team efficiently adapted to the client's scanning preferences while delivering comprehensive documentation that fulfilled all future renovation requirements.
Converted point cloud into a coordinated LOD 300 BIM model with full accuracy
Captured and detailed façade moldings and structural beams for design planning
Delivered flexible outputs in Revit and SketchUp for retail design workflows
Principaux défis et solutions
Ornamental Detailing: Façade moldings modeled with high fidelity to preserve character
Roof Complexity: Multiple roof planes and supports carefully documented in Revit
Vertical Circulation: Precise modeling of stairs ensured accurate two-level integration
NOTRE FLUX DE TRAVAIL : Numériser, Traiter,
Modélisation et livraison 3D

Mashawnta Armstrong
Project Manager, Development and Construction at James Perse
“DCMS has been instrumental to our global store openings for years”
From Paris to Abu Dhabi, Miami to Las Vegas, their team consistently captures existing conditions and delivers precise as-built documentation — fast. They’ve helped us streamline planning and construction across multiple continents, making it easier to coordinate with architects, contractors, and our internal teams. Their speed and reliability are a major asset on every new build.

Dynamisez votre projet avec précision
Obtenez des données LiDAR fiables, des numérisations 3D et une documentation conforme à l'exécution pour avancer avec précision et confiance.
Parlez à un spécialiste – Disponible tous les jours, à tout moment
Approuvé par les plus grandes marques et les leaders de l'industrie


















